|
1 范围
本标准规定了一次冷轧电镀锡钢板及钢带的分类和代号、尺寸、外形、重量、技术要求、检验和试验、包装、标志和质量证明书等。
本标准适用于常州精密钢管博客网精密带钢厂生产的厚度为0.18mm~0.50mm的一次冷轧电镀锡钢板及钢带(以下简称钢板及钢带)。
2
规范性引用文件
下列文件中的条款通过本标准的引用而成为本标准的条款。凡是注日期的引用文件,其随后所有的修改单(不包括勘误的内容)或修订版均不适用于本标准,然而,鼓励根据本标准达成协议的各方研究是否可使用这些文件的最新版本。凡是不注日期的引用文件,其最新版本适用于本标准。
GB/T 728-1998 锡锭 GB/T 1838-1995 镀锡钢板(带)镀锡量试验方法 GB/T
8170-1987 数值修约规则 Q/BQB 400-2003 冷轧产品的包装、标志及质量证明书 Q/BQB
401-2003 冷连轧钢板及钢带的尺寸、外形、重量及允许偏差 ISO 6508-1-1999 金属洛氏硬度试验
第1部分:试验方法
3 分类和代号 3.1 钢板及钢带的分类及代号如表1的规定。
表 1
| 分类方式 |
类 别 |
代 号 |
| 原板钢类型 |
- |
MR |
| 调质度 |
- |
T-1,T-2,T-2.5,T-3,T-4 |
| 退火方式 |
连续退火 |
CA |
| 罩式退火 |
BA |
| 差厚镀锡标识方法 |
厚镀锡面标识 |
A |
| 薄镀锡面标识 |
D |
| 表面状态 |
光量表面 |
D |
| 石纹表面 |
R |
| 银色表面 |
S |
| 表面质量 |
Ⅰ级 |
Ⅰ |
| Ⅱ级 |
Ⅱ |
| 表面处理方式 |
电化学钝化 |
CE |
![]() |
3.2 牌号 钢板及钢带的牌号通常由原板钢类型、调质度代号和退火方式构成。 例如:MR T-2BA
,MR T-4CA。
4 订货所需信息 4.1 订货时用户应提供如下信息:
a) 产品名称 b) 本产品标准号 c) 牌号 d) 产品规格 e) 镀锡量代号
f) 表面状态 g) 表面质量级别 h) 包装方式 i) 用途 j) 张数或重量
4.2
如订货合同中未注明表面状态、表面质量和包装方式,则供方按石纹表面R、表面质量Ⅰ级供货,并按供方提供的包装方式包装。
5
尺寸、外形、重量及允许偏差 5.1尺寸 5.1.1 钢板及钢带的公称厚度范围为0.18mm~0.50
mm,公称宽度范围为700mm~965mm。钢板的公称长度为500mm~1168mm。 5.1.2
如需方要求标记轧制宽度方向,可在表示轧制宽度方向的数字后面加上字母W。 例如: 0.23×815W×730
5.1.3 钢带(卷)内径为420mm。 5.2 尺寸允许偏差
5.2.1钢板及钢带的厚度允许偏差应不超出公称厚度的±5.0%,测量点为距边部不小于10 mm的任意点。
5.2.2 薄边
薄边是钢板及钢带沿宽度方向上厚度的变化,其特征是在靠近钢板及钢带的边缘发生厚度减薄。其允许偏差应不大于中间实际厚度的8.0%,测量点为距边部6mm处。
5.2.3 钢板及钢带的宽度允许偏差为 0mm ~ + 3mm。 5.2.4 钢板的长度允许偏差为0mm ~
+ 3 mm。 5.3 外形 5.3.1 脱方度应不大钢板宽度的0.15%。 5.3.2
每任意1000mm长度上镰刀弯应不大于1 mm。 5.3.3 不平度应不大于3mm。 5.4
其它尺寸、外形、重量及允许偏差按Q/BQB401的规定。
6 技术要求 6.1
硬度 6.1.1钢板及钢带的硬度(HR30Tm)应符合表2的规定。 表2
| 调质度代号 |
硬 度(HR30Tm) |
| 目标 |
允许范围 |
| T-2 |
53 |
53±3 |
| T-2.5 |
55 |
55±3 |
| T-3 |
57 |
57±3 |
| T-4 |
61 |
61±3 |
![]() |
6.1.2 硬度二点试验平均值应符合表2的规定,允许其中一个试验值超出规定允许范围1个单位。 6.2
冶炼方法 钢板及钢带所用的钢采用氧气转炉冶炼。 6.3 镀锡量 6.3.1
钢板及钢带的镀锡量代号、公称镀锡量及最小平均镀锡量按表3的规定,如需表3以外的镀锡量可在订货时协商。 表 3
| 区 分 |
镀锡量代号 |
公称镀锡量g/m2 |
最小平均镀锡量g/m2 |
| 等厚镀锡 (E) |
1.1/1.1 |
1.1/1.1 |
0.9/0.9 |
| 2.8/2.8 |
2.8/2.8 |
2.5/2.5 |
| 5.6/5.6 |
5.6/5.6 |
5.2/5.2 |
| 8.4/8.4 |
8.4/8.4 |
7.8/7.8 |
| 差厚镀锡 (D或A) |
2.8/1.1 |
2.8/1.1 |
2.5/0.9 |
| 1.1/2.8 |
1.1/2.8 |
0.9/2.5 |
| 5.6/1.1 |
5.6/1.1 |
5.2/0.9 |
| 1.1/5.6 |
1.1/5.6 |
0.9/5.2 |
| 5.6/2.8 |
5.6/2.8 |
5.2/2.5 |
| 2.8/5.6 |
2.8/5.6 |
2.5/5.2 |
| 8.4/2.8 |
8.4/2.8 |
7.8/2.5 |
| 2.8/8.4 |
2.8/8.4 |
2.5/7.8 |
| 8.4/5.6 |
8.4/5.6 |
7.8/5.2 |
| 5.6/8.4 |
5.6/8.4 |
5.2/7.8 |
.gif) |
6.3.2
镀锡量每面三点试验平均值应不小于相应面的最小平均镀锡量,每面单点试验值应不小于相应面的最小平均镀锡量的80%。
6.3.3
表3所示的镀锡量,斜线上面表示钢板上表面或钢带外表面的镀锡量,斜线下面表示钢板下表面或钢带内表面的镀锡量。
6.3.4如需对差厚镀锡钢板及钢带进行标识可在订货时协商。 6.4 表面状态
钢板及钢带的表面状态按原板的表面特征来分类,各表面状态的特征如表4所述。 表 4
| 代 号 |
类 别 |
特 征 |
| B |
光亮表面 |
在具有磨石花纹的光滑表面的原板上镀锡,然后进行锡层软熔处理得到的有光表面。 |
| R |
石纹表面 |
在具有一定方向的磨石花纹表面的原板上镀锡,然后进行锡层软熔处理得到的有光表面。 |
| S |
银色表面 |
在粗糙无光表面的原板上镀锡,然后进行锡层软熔处理得到的有光表面。 |
.gif) |
6.5 表面质量 6.5.1 钢板及钢带各表面质量级别的特征如表5所述。
6.5.2对于钢带,由于没有机会切除带缺陷部分,因此钢带允许带缺陷交货,但有缺陷的部分不得超过每卷总长度的8%。
6.6 表面处理方式 钢板及钢带的表面处理方式为电化学钝化。 6.7 钢板及钢带表面通常涂DOS油。
表 5
| 级别 |
特 征 |
| Ⅰ级 |
表面不允许有针孔及对按预定用途使用有影响的缺陷,在正常贮存条件下,保证整个表面都能进行常规的涂漆和印刷。 |
| Ⅱ级 |
表面允许有轻微的划伤、压痕、辊印、油斑等缺陷,不保证整个表面都能进行常规的涂漆和印刷。 |
.gif) |
6.8 原板钢类型如表6所示。根据需方要求,经供需双方协商也可使用其它钢类型。 表 6
| 原板钢类型 |
特 性 |
| MR |
非金属夹杂物的含量低,Cu、Ni、Cr、Mo等残余元素的含量也较低,具有良好的耐蚀性,适用于大多数用途。 |
.gif) |
6.9 锡层所用锡锭的质量应符合GB/T 728中Sn99.90的规定,但铅含量应不大于0.03%。
7 钢带(卷)内的焊缝 7.1 钢卷内的焊缝数应不大于1个。 7.2 焊缝的位置应采用适当的方式加以标识。
7.3 焊缝的厚度应不大于钢卷公称厚度的3倍。
 图 1 搭接焊缝
|
7.4 焊缝的搭接总长度a应不大于10mm,自由搭接长度b应不大于5mm,如图1所示。
8 检验和试验 8.1 钢板及钢带的外观用肉眼检测。 8.2
钢板及钢带的尺寸、外形应用合适的测量工具测量。 8.3
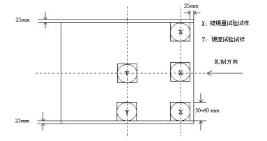
每批钢板及钢带的检验项目、试样数量、取样方法和试验方法应符合表7的规定。 表 7
| 序号 |
检验项目 |
试样数量(个) |
取样方法 |
试验方法 |
| 1 |
硬度 |
2 |
在垂直于轧制方向截取,取样位置见图2 |
ISO 6508-1 |
| 2 |
镀锡量 |
3 |
在垂直于轧制方向截取,取样位置见图2 |
GB/T 1838 |
.gif) |
8.4 公称厚度不大于0.21mm时,硬度测定HR15T,然后按表8换算为HR30Tm。
8.5钢板及钢带应按批检验,每批应由不大于15吨的同牌号、同规格、同镀锡量及同表面状态的钢板或钢带组成。
8.6
对于硬度和镀锡量试验,如有某一项试验结果不符合标准要求,则从同一批中再任取双倍数量的试样进行该不合格项目的复验。复验结果(包括该项目试验所要求的所有指标)合格,则整批合格。复验结果(包括该项目试验所要求的所有指标)即使有一个指标不合格,则复验不合格。如复验不合格,则已做试验且试验结果不合的单件不能验收,但该批材料中未做试验的单件可逐件重新提交试验和验收。
 图 2 试样的取样位置
|
表 8
| HR15T |
换算HR30Tm |
HR15T |
换算HR30Tm |
| 93.0 |
82.0 |
83.0 |
62.5 |
| 92.5 |
81.5 |
82.5 |
61.5 |
| 92.0 |
80.5 |
82.0 |
60.5 |
| 91.5 |
79.0 |
81.5 |
59.5 |
| 91.0 |
78.0 |
81.0 |
58.5 |
| 90.5 |
77.5 |
80.5 |
57.0 |
| 90.0 |
76.0 |
80.0 |
56.0 |
| 89.5 |
75.5 |
79.5 |
55.0 |
| 89.0 |
74.5 |
79.0 |
54.0 |
| 88.5 |
74.0 |
78.5 |
53.0 |
| 88.0 |
73.0 |
78.0 |
51.5 |
| 87.5 |
72.0 |
77.5 |
51.0 |
| 87.0 |
71.0 |
77.0 |
49.5 |
| 86.5 |
70.0 |
76.5 |
49.0 |
| 86.0 |
69.0 |
76.0 |
47.5 |
| 85.5 |
68.0 |
75.5 |
47.0 |
| 85.0 |
67.0 |
75.0 |
45.5 |
| 84.5 |
66.0 |
74.5 |
44.5 |
| 84.0 |
65.0 |
74.0 |
43.5 |
| 83.5 |
63.5 |
73.5 |
42.5 |
.gif) |
9 包装、标志及质量证明书 钢板及钢带的包装、标志及质量证明书应符合Q/BQB
400的规定。如需方对包装重量有特殊要求,应在合同中注明。
10 数值修约规则
数值修约规则应符合GB/T 8170的规定。
|